3 BEDROOM TOWNHOUSE IN RAILWAY ESTATE!
1/5 Xavier Court, RAILWAY ESTATE QLD 4810
Welcome to 1/5 Xavier Street, Railway Estate!
Located in a quiet and well-maintained court, this recently renovated three-bedroom townhouse duplex offers comfortable, modern living in a highly convenient location. Thoughtfully updated throughout, the home provides generous proportions and a practical layout designed to suit a relaxed, low-maintenance lifestyle.
Just a short drive from the CBD, The Strand, and a wide range of local shops, cafes, schools, and transport options, this property delivers the best of city living without the hustle and bustle. With its combination of space, modern finishes, and an unbeatable location, this townhouse is ideal for professionals, couples, or small families seeking convenience and comfort.
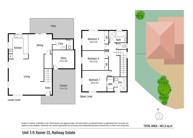
Property Features:
• Master bedroom with split air-conditioning, ceiling fans and walk-in robe that lead into the ensuite.
• Two additional bedrooms with split air-conditioning, ceiling fans and built-in robes.
• Main bathroom offers a separate shower recess and bath tub.
• Additional toilet upstairs.
• Large lounge room carpeted with tiled walkway.
• Modern kitchen with stone look bench tops, ample storage.
• Tiled dining area which opens up to the sliding doors accessing the patio
• Third additional toilet downstairs for convenience.
• Internal laundry and storage area under the internal staircase.
• A separate spacious storeroom is located at the rear of the garage.
• Rear patio overlooks the fully fenced backyard.
• Backyard has double side gate access ideal for boats, caravans or trailers.
• Undercover car space and 1 additional parking area.
AVAILABLE APPROX 04/03/2026.
OUR AGENCY WILL ONLY PROCESS APPLICATIONS ONCE YOU HAVE EITHER ATTENDED A VIEWING OF THE PROPERTY OR VIEWED THE WALK-THROUGH VIDEO AND ARE HAPPY TO PROCEED WITH YOUR APPLICATION, AND SIGN OUR WAIVER CONFIRMING YOU HAVE VIEWED THE WALK-THROUGH VIDEO.











